Buat Gambarmu Berbicara
Oleh: Hilmi Dzakaaul Islam
Gambar kerja atau DED (Detail Engineering Design) merupakan salah satu alat yang penting dan harus dikuasai oleh seorang designer. Gambar tersebut berfungsi sebagai perantara komunikasi antara desainer dan pihak lain yang terlibat dalam sebuah proyek, misal kontraktor, tukang, client dan tim desainer itu sendiri.

Gambar 1. Gambar kerja
Sumber: google.com, 2025
Proses pembuatan gambar kerja juga harus mengikuti kaidah dari standar yang telah ditetapkan oleh PUPR. Selain mengikuti standar, sebuah gambr yang baik adalah gambar yang dapat “berbicara”. Maksudnya bukan berbicara secara lisan atau menghasilkan suara sendiri, namun berbicara dalam arti kiasan yang mampu menyampaikan informasi dengan baik dan detail kepada pembaca, sehingga designer tidak perlu lagi menjelaskan isi gambar tersebut. Keberadaan gambar kerja dalam proyek merupakan hal yang wajib ada, karena gambar tersebut fungsi utamanya adalah sebagai “guideline” pelaksana dalam mengerjakan proyek agar bentukannya sesuai dengan yang telah dirancang oleh desainer sebagai perencana. Fungsi lain adalah membuat semuanya terencana dengan jelas, serta waktu menjadi lebih efektif dan efisien dalam proyek.
Agar gambar kerja dapat “berbicara”, terdapat 3 (tiga) elemen utama yang harus diperhatikan dan diapilkasikan, diantaranya yaitu:
- Gambar
Merupakan poin utama yang wajib ada dalam sebuah gambar kerja. Jika tidak ada gambar, maka apa yang harus dibahas dan dipelajari dalam gambar kerja? Gambar harus terlihat dengan jelas sehingga maksud dari gambar tersebut dapat langsung tersampaikan. Detail gambar juga harus lengkap agar semua informasi dapat tersampaikan kepada pembaca. Tebal tipis dari garis yang tergambar sebaiknya terlihat kontras satu sama lain agar tidak membingungkan.
- Dimensi
Objek yang tergambar dengan baik, perlu dilengkapi dengan dimensi agar terlihat ukuran yang diperlukan dalam pelaksanaan. Semua bagian yang dirasa penting maka perlu untuk diberi ukuran agar objek yang sedang dikerjakan dapat berhasil terbangun secara presisi. Namun juga perlu diperhatikan, tidak semua objek perlu untuk siberi notasi dimensi agar tidak membingungkan dalam membaca gambar kerja.
- Keterangan
Point ketiga yang wajib hadir adalah keterangan gambar. Isinya dapat berupa spesifikasi material, finishing yang digunakan, ketinggian lantai atau plafon serta kelengkapan identitas proyek. Adanya keterangan harus jelas sehingga mudah terbaca dan dipahami, singkat padat dan jelas serta letaknya terorganisir dan konsisten.
Selain ketiga poin utama tersebut, juga perlu diperhatikan elemen standar yang lain diantaranya ukuran teks, judul gambar, skala dan kop gambar agar dapat menghasilkan sebuah gambar kerja yang baik dan tentunya dapat “berbicara” dengan maksimal.

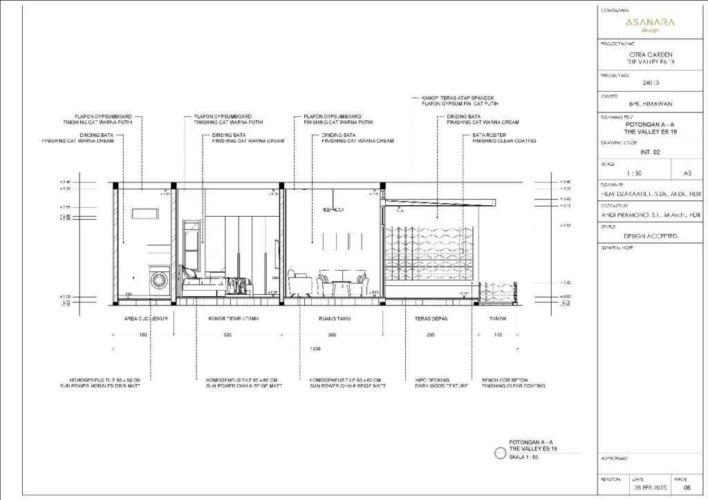
Gambar 2. Gambar kerja potongan interior
Sumber: Data pribadi, 2025

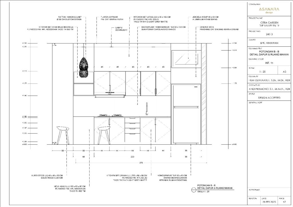
Gambar 3. Gambar kerja detail interior
Sumber: Data pribadi, 2025
Referensi
Modul Standar Kelengkapan Gambar Arsitektur, Kementerian PUPR, Edisi 1, September 2021 https://iai-jatim.com/wp-content/uploads/2023/11/Standar-Kelengkapan-Gambar-Arsitektur-PUPR-2021.pdf
Standar Informasi dalam Gambar Manual 2015, Institut Teknologi Bandung, 2016 https://multisite.itb.ac.id/prodi-arsitektur-fix/wp-content/uploads/sites/162/2016/08/Standar-Manual-2015.pdf
Comments :